Prodej pozemků s projektem a stavebním povolením na výstavbu dvou RD - Dukovany

  • Cena:
    11 000 000 Kč (za nemovitost)
    včetně provize RK a právního servisu a kolků na KN
  • Celková plocha
    2 425 m2
  • Druh pozemku
    pro komerční výstavbu
  • Inženýrské sítě
    vodovod
  • Charakter okolní zástavby
    venkovská
  • Umístění objektu
    klidná část obce
  • Doprava
    silnice; autobus
  • Komunikace
    asfaltová

Mám zájem o bližší informace/prohlídku

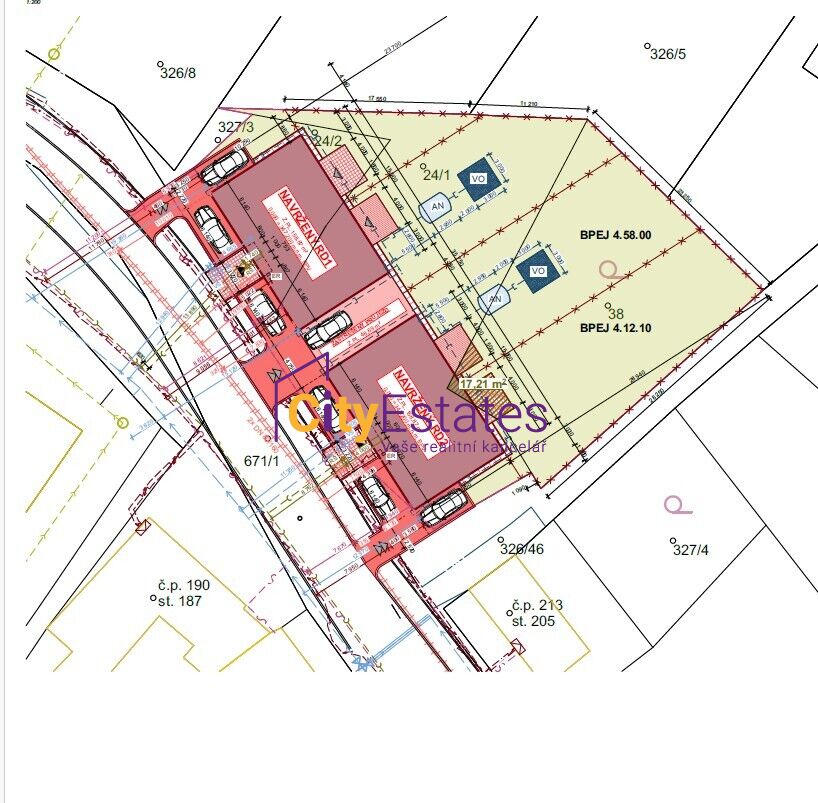
V zastoupení klienta nabízíme k prodeji dvba stavební pozemky na výstavbu rodinných domů se stavebním povolením - každý dům má 3 bytové jednotky - 2x 2kk, 1x 3kk a ateliér. Zastavěná plocha RD1: 158,870 m2 Obestavěný prostor RD1: 1212,748 m3 Užitná plocha RD1: 273,170 m2 Zastavěná plocha RD2: 158,870 m2 Obestavěný prostor RD2: 212,748 m3 Užitná plocha RD2: 273,170 m2 Zpevněné plochy - terasy: 48,000 m2 Zpevněné plochy - pojízdné: 210,990 m3 Okapový chodník: 15,540 m2 Parkovací stání jsou navržena pro potřeby nových rodinných domů, je navrženo celkem 7 parkovacích stání umístěných podél komunikace II/392. Ateliéry mají plánované společné parkovací stání. Parkovací stání budou mít povrch z vegetačních tvárnic 200/200/80 mm. Domy budou napojeny na veřejný vodovod, kanalizaci, elektřinu a dálkové vytápení. S plynofikací není počítáno.

Volejte na tel.:
Dotazy pište na:
antonin.tvrdon@cityestates.cz
Kontakt na developera:




Kontakt na prodejce:
City Estates s.r.o.
Na Moráni 1750/4
120 00 Praha 2

Tel.: +420 607 523 476
E-mail: antonin.tvrdon@cityestates.cz